top of page
LAURA-IZGRADNJA
Naslovna
O nama
Projekti
Kontakt
Prodaja
Kalamiri 1
More
Use tab to navigate through the menu items.
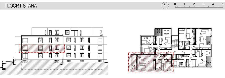
Stan S1.2
mail: info@laura-izgradnja.hr
mobitel: +385 099 202 5152
Pošaljite nam upit
bottom of page